This is the page header containing logo, email contact info, and welcome text.

An image of a poster featuring the Napa Valley COllege Digital Design and Graphic Technology Career Education Pathway. Created in Photoshop.


In this assignment I designed and constructed a residential structure using Revit software. Project instructions required a two-story home no more than 3,000 square-feet. The project taught both the design process and how to use Revit including producing views, sheets, and schedules.


***Please select PDF link above to view the project sheet set.***




Please explore more below:






An image of a poster featuring the Napa Valley COllege Digital Design and Graphic Technology Career Education Pathway. Created in Photoshop.
3D View of Residential Design - Front


An image of a poster featuring the Napa Valley COllege Digital Design and Graphic Technology Career Education Pathway. Created in Photoshop.
Section View - Floor 1


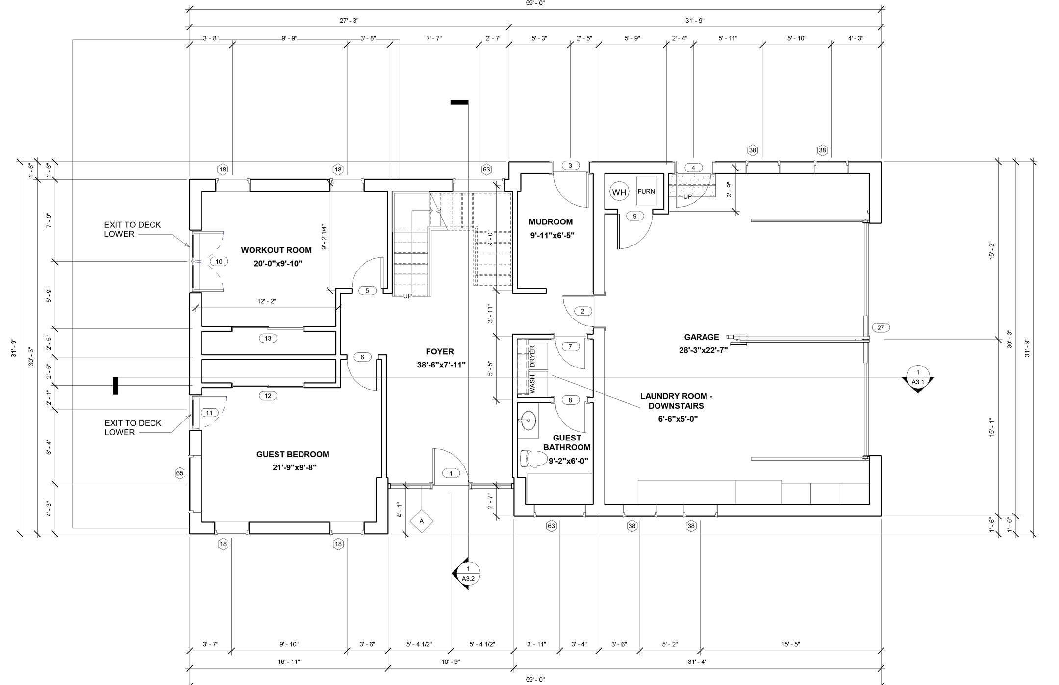
An image of a poster featuring the Napa Valley COllege Digital Design and Graphic Technology Career Education Pathway. Created in Photoshop.
Floor 1 Plan


An image of a poster featuring the Napa Valley COllege Digital Design and Graphic Technology Career Education Pathway. Created in Photoshop.
View of Foyer


An image of a poster featuring the Napa Valley COllege Digital Design and Graphic Technology Career Education Pathway. Created in Photoshop.
3D View of Residential Design - Back


An image of a poster featuring the Napa Valley COllege Digital Design and Graphic Technology Career Education Pathway. Created in Photoshop.
Section View - Floor 2


An image of a poster featuring the Napa Valley COllege Digital Design and Graphic Technology Career Education Pathway. Created in Photoshop.
Floor 2 Plan


An image of a poster featuring the Napa Valley COllege Digital Design and Graphic Technology Career Education Pathway. Created in Photoshop.
View of Kitchen